Objektbeschreibung
Das hier zum Verkauf stehende Apartment befindet sich im zweiten und damit obersten Geschoss einer kleinen, gepflegten Eigentumswohnanlage, die in den 70er Jahren auf einem ca. 6.500 m² großen Parkgrundstück erbaut wurde.
Das absolute Highlligt dieser Immobilie ist sicherlich – neben dem attraktiven Kaufpreis – die ca. 62 m² große Dachterrasse. Diese umgibt die gesamte Wohnung, die der Straße abgewandte Seite bietet einen sehr schönen und grünen Blick auf das parkähnliche Grundstück.
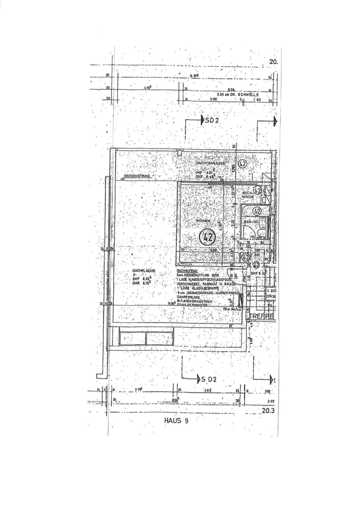
Der Grundriss dieses Studios ist ausgesprochen kompakt:
In dem ca. 25 m² großen Wohnraum ist für alle „Lebensbereiche“ gesorgt, so wurde hier eine Kochnische mit einer kleinen Kitchenette integriert, für das Bett wurde wiederum eine Schlafnische vorgesehen, die Schlafen vom Wohnen ein wenig separiert. Von dem Wohnbereich aus gelangt man auf die wunderbar geräumige Dachterrasse, auf der sich in den warmen Monaten das Leben sicherlich vorrangig abspielen wird. Ein großes Fensterelement mit Schiebetür ist in dem Wohnbereich eingebaut, sodass man bequem auf die Terrasse gelangt und gleichzeitig das Tageslicht die gesamte Wohnung erhellt. Eine Markise sorgt im Sommer wiederum für angenehmen Schatten.
Das Badezimmer ist mit einer Badewanne ausgestattet, da dieses hinsichtlich der Ausstattung nicht mehr dem aktuellen Zeitgeschmack entspricht, wird der Erwerber der Immobilie wahrscheinlich ein neues Dusch- oder Wannenbad einbauen lassen.
Beschreibung der Lage
Die angebotene Immobilie befindet sich im Berliner Bezirk-Zehlendorf, der zu den beliebtesten und grünsten Wohnbezirken im Südwesten unserer Stadt zählt. In der Gegend rund um den Fischtal-Park befinden sich ruhige Wohnstraßen mir schönen Ein- und Mehrfamilienhäusern. In nur wenigen Minuten gelangt man zu den Badeseen Krumme Lanke und Schlachtensee mit dem attraktiven Biergarten „Fischerhütte“, auch der Grunewald liegt im Grunde vor der Haustür.
Viele Geschäfte des täglichen Bedarfs befinden sich wiederum in Laufnähe auf der Clayallee, auch das kleine Einkaufszentrum am U-Bahnhof Onkel-Toms-Hütte (U-Bahn-Linie 3) ist zu Fuß sehr gut erreichbar. Zahlreiche Buslinien sind vor der Haustür verfügbar, über die Berliner Straße gelangt man mit dem Auto wiederum schnell auf die Autobahn (Dreilinden). Die Clayallee stellt wiederum eine gute Verbindung in Richtung Innenstadt her.
Wir bitten Sie höflich, Besichtigungen nur nach vorheriger Terminvereinbarung mit unserem Büro und im Beisein eines unserer Mitarbeiter vorzunehmen.
Unsere Angaben beruhen auf den Aussagen des Eigentümers bzw. Verkäufers. Für deren Richtigkeit übernehmen wir keine Gewähr.
